Machbarkeitsstudie – Feuerwehr Borken
Neubau eines Feuerwehrhauses
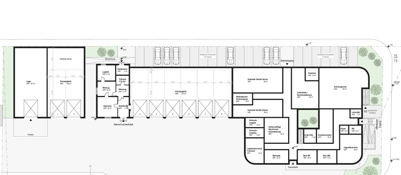
Das bestehende Feuerwehrgebäude entspricht sowohl funktionell als auch platztechnisch nicht mehr den heutigen Anforderungen und Verordnungen. Die Stadt plant daher den Abbruch des Feuerwehrhauses mit Fahrzeughalle. Lediglich die im Jahr 2017 gebaute Atemschutzwerkstatt soll erhalten bleiben.
Der Neubau ist als erdgeschossiges Feuerwehrgebäude mit Teilunterkellerung geplant.
Im Rahmen einer Machbarkeitsstudie sollte geklärt werden, ob die heutigen Anforderungen auf dem bisherigen Grundstück umgesetzt werden können. Dabei konnten sowohl raumtechnische und gestalterische Fragen geklärt als auch ein erster Ausblick auf die zu erwartenden Kosten gegeben werden.
Größe: 2.140 m² BGF / 10.210 m² BRI

